RETROFIT MILLENIUM FLIP-TOP COPPER DRAIN

Designed specifically for roof repair and refurbishment. High-quality copper drain with the proper dimensions to connect with the Millenium drain seal. Optional product: Millenium drain marker, Flow control.

Attached files

Open or select files to share.

Description

DOME

  • Two piece secured hinged HD cast aluminum Vandal Proof dome
  • Easy maintenance with single Phillips screw
  • Top fully opens with 6½” opening
  • 3 bolt design allow sease of installation
  • Millenium flip top dome fits all sizes of Millenium retro fit and new construction size copper and aluminum drains
  • Designed to accommodate contract or metal foil adhesive label
  • 33 weir openings for effective drainage
  • Available and boxed a s‘dome only ’ in boxes of 5
  • Millenium Flow Control canal so be used as needed
  • Flip top dome series copper drains are SKU designated beginning with P (Premium)
  • Standard dome on all P series copper drains

FLANGE / CLAMPING RING

  • Heavy cast aluminum construction
  • 9 drainage channels to allow full drainage
  • Flange designed for optimum seal with roof flashing
  • Fits all sizes of Millenium copper drains
  • Reversible to allow elevation drainage options

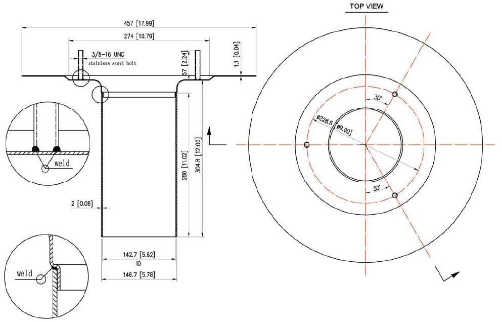
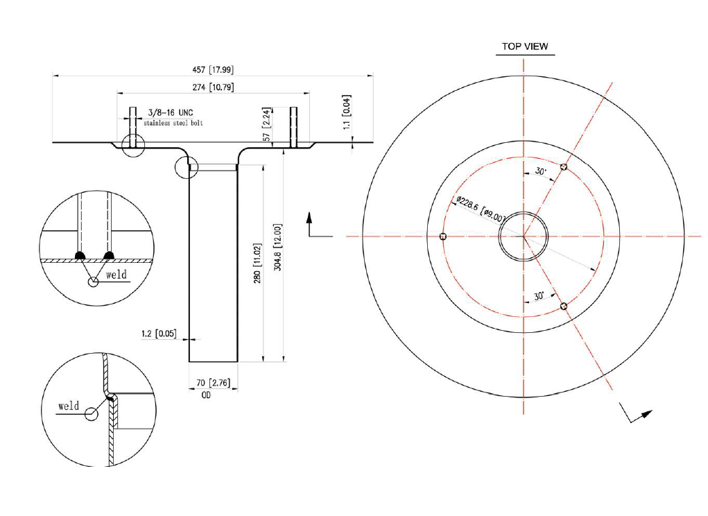
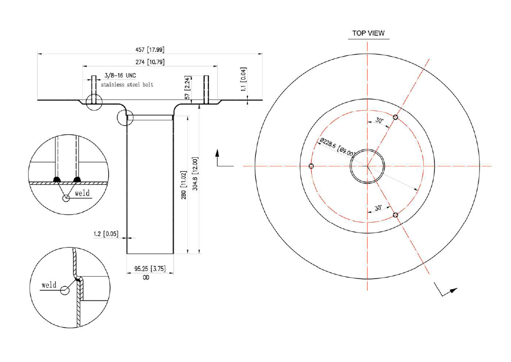
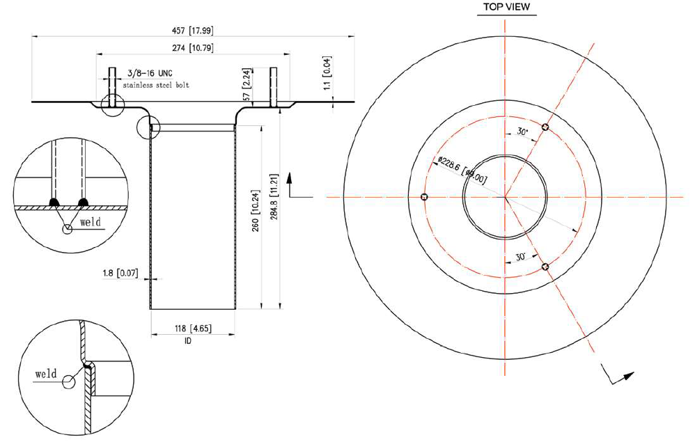
DRAIN DECK AND STEM

  • 24 oz. / .05” (1.2 mm) prime roofing grade T-2 copper
  • Available in either flat or recessed deck
  • Argon-Arc welded and overlapping seams for clean solid weld fusion
  • Tig welded 3/8” stainless steel bolts to copper deck
  • Extra set of stainless steel nuts (6)
  • Code approved CSA-B79
  • Available Retrofit sizes 2 ¾”, 3 ¾”, 4 ¾”, 5 ¾”
  • 1.2 mm copper for drains up to 3”, 1.5 mm for 5” and 2.0 mm copper for 6” drains
  • 18” Wide deck for better adhesion

More informations

Contact Us